長高頸法蘭也叫長徑法蘭,屬于美標法蘭標準體系,是ANSI法蘭的一種表現形式,就是帶頸對焊法蘭的一種擴展形式。法蘭頸部微微直筒型,頸部高度取229MM或305MM,法蘭頸部不需要加工坡口,可參照HG20615-2009相關標準的要求,或根據客戶要求定制坡口。長高頸法蘭在CLASS系列的管法蘭中使用頻繁,在小尺寸法蘭或DN50以下的管法蘭與管體配合時,使用長高頸法蘭可避免法蘭頸部壁厚薄導致的不容易焊接。

長高頸法蘭的優點:頸部高度相比普通對焊法蘭高,使法蘭的剛度及承載能力大大提高。工地現場安裝方便,可省略一些工序,例如:焊縫比較容易處理,可省略焊縫探傷工藝,近年來使用量成上升趨勢。
制造標準:HG/T20615-2009、ASME B 16.5

焊接方法:高頸對焊法蘭與鋼管的環向焊接方法前期主要有2種,即:手工氣保焊和全自動擺動氣保焊。焊接時多采用單面坡口,GTAW打底,然后再SMAW,具體的可以根據焊接工藝要求操作,不同的材料及尺寸也有不同的焊接方法。
焊縫最大寬度Bmax和最小寬度Bmin的差值,在任意50 mm焊縫長度范圍內偏差值不得大于4.0 mm,且整個焊縫長度范圍內偏差值不大于5.0 mm。
高頸鍛造法蘭生產技術已經逐步成熟,總體質量較好,焊縫總體一次合格率達98%,各項關鍵指標能滿足生產技術要求,但在工藝方面還需進一步優化。
抗硫化氫法蘭:工業管道系統的堅固防線
在石油、天然氣等能源開采以及化工等眾多工業領域中,硫化氫(H?S)作為一種常見且極具腐蝕性的氣體,對管道系統構成了嚴峻挑戰。硫化氫不僅具有強腐蝕性,還會引發應力腐蝕開裂等問題,嚴重威脅管道的安全運行。抗硫化氫法蘭應運而生,成為保障管道系統在含硫環境中穩定、安全運行的關鍵部件。

在石油、天然氣等能源開采以及化工等眾多工業領域中,硫化氫(H?S)作為一種常見且極具腐蝕性的氣體,對管道系統構成了嚴峻挑戰。硫化氫不僅具有強腐蝕性,還會引發應力腐蝕開裂等問題,嚴重威脅管道的安全運行??沽蚧瘹浞ㄌm應運而生,成為保障管道系統在含硫環境中穩定、安全運行的關鍵部件。
硫化氫腐蝕的威脅 硫化氫在工業環境中廣泛存在,尤其在石油和天然氣開采過程中,地層中的硫化氫會隨著油氣一同被開采出來。當硫化氫與水接觸時,會形成酸性溶液,對金屬材料產生強烈的腐蝕作用。這種腐蝕主要表現為均勻腐蝕、點蝕、氫致開裂(HIC)、硫化物應力腐蝕開裂(SSC)等形式。均勻腐蝕會使金屬材料的厚度逐漸減薄,降低其承載能力;點蝕則會在金屬表面形成小孔,成為腐蝕進一步發展的隱患;氫致開裂和硫化物應力腐蝕開裂更為危險,它們會在材料內部產生裂紋,最終導致管道破裂,引發泄漏事故,造成嚴重的環境污染和經濟損失。
抗硫化氫法蘭的工作原理 抗硫化氫法蘭通過特殊的設計和材料選擇來抵御硫化氫的侵蝕。在設計方面,它通常具有更合理的結構,以減少應力集中點,降低因應力導致的腐蝕風險。例如,帶頸對焊法蘭采用了特殊的喇叭形體結構,這種結構能使焊口離接合面有較大距離,避免接合面受到焊接溫度變形的影響,同時也有助于均勻分散管道內的壓力和應力。 從材料角度來看,抗硫化氫法蘭選用的鋼材經過精心篩選和處理。這些鋼材一般具有低硫、低磷含量,以減少雜質對材料耐腐蝕性的不利影響。同時,會添加一些合金元素,如鉻(Cr)、鎳(Ni)、鉬(Mo)等。鉻能在金屬表面形成一層致密的氧化膜,提高材料的抗氧化和抗腐蝕能力;鎳可以增強材料的強度和韌性,同時提高其在酸性環境中的耐腐蝕性;鉬則有助于提高材料的抗點蝕和縫隙腐蝕性能。通過這些合金元素的協同作用,使法蘭材料具備優異的抗硫化氫腐蝕性能。
抗硫化氫法蘭的應用領域 石油和天然氣開采 在石油和天然氣開采過程中,從井口到集輸管道,再到處理廠的各個環節,都面臨著硫化氫腐蝕的風險??沽蚧瘹浞ㄌm廣泛應用于這些管道系統中,確保油氣的安全輸送和處理。例如,在高含硫氣田的開采中,井口裝置的連接、集輸管道的連接等部位都必須使用抗硫化氫法蘭,以防止硫化氫對管道的腐蝕,保障生產的連續性和安全性。 化工行業 化工生產中,許多工藝過程會涉及到硫化氫或含硫化合物。如煉油廠的加氫裝置、硫磺回收裝置,以及一些以含硫原料進行生產的化工企業。在這些裝置的管道系統中,抗硫化氫法蘭用于連接管道、設備,防止硫化氫腐蝕導致的泄漏事故,保證化工生產的穩定運行。 海洋工程 海洋環境中不僅存在海水的腐蝕,一些海底油氣田還含有硫化氫等腐蝕性氣體。海上平臺的油氣輸送管道、海水處理系統等都需要使用抗硫化氫法蘭。這些法蘭要同時具備抗海水腐蝕和抗硫化氫腐蝕的性能,以適應惡劣的海洋環境。
抗硫化氫法蘭的性能測試 為了確??沽蚧瘹浞ㄌm在實際使用中能夠可靠地抵御硫化氫腐蝕,需要進行一系列嚴格的性能測試。 氫致開裂(HIC)測試 常用的測試標準有 NACE TM0284 - 2016、GB/T 8650 - 2015 等。測試時,從法蘭上切割出特定尺寸的試樣,將其置于含有 NaCl 和 CH?COOH 的酸化溶液(如 A 溶液)或合成海水溶液(如 B 溶液)中,在常溫常壓下暴露 96 小時。測試結束后,通過宏觀檢查和微觀分析來評估試樣表面和內部是否有裂紋形成,以此判斷法蘭材料對氫致開裂的敏感性。 硫化物應力腐蝕開裂(SSC)測試 依據 NACE TM0177 等標準進行。測試時,對試樣施加一定的應力,并將其置于含硫化氫的酸性溶液中,觀察在規定時間內試樣是否出現裂紋。該測試主要評估法蘭材料在硫化氫環境和應力共同作用下抵抗開裂的能力。
抗硫化氫法蘭的發展趨勢 隨著工業的不斷發展,對管道系統在含硫環境下的安全運行要求越來越高,抗硫化氫法蘭也在不斷發展創新。一方面,材料研發持續深入,新型高性能材料不斷涌現,如具有更優異耐腐蝕性和綜合性能的合金材料。通過優化合金成分和微觀結構,進一步提高法蘭的抗硫化氫腐蝕能力和使用壽命。另一方面,制造工藝不斷改進,采用先進的加工技術和質量控制手段,確保法蘭的制造精度和質量穩定性。例如,利用數字化制造技術實現精準加工,通過嚴格的質量管理體系保證每一個法蘭都符合高標準的性能要求。同時,隨著智能化技術的發展,未來抗硫化氫法蘭可能會集成一些智能監測功能,能夠實時監測其腐蝕狀態和工作性能,為管道系統的安全運行提供更可靠的保障。 抗硫化氫法蘭在工業管道系統中起著至關重要的作用,它是抵御硫化氫腐蝕的堅固防線。通過不斷優化材料選擇、改進設計和制造工藝、加強性能測試以及探索智能化發展,抗硫化氫法蘭將在未來的工業發展中持續為管道系統的安全穩定運行保駕護航。
硫化氫腐蝕的威脅 硫化氫在工業環境中廣泛存在,尤其在石油和天然氣開采過程中,地層中的硫化氫會隨著油氣一同被開采出來。當硫化氫與水接觸時,會形成酸性溶液,對金屬材料產生強烈的腐蝕作用。這種腐蝕主要表現為均勻腐蝕、點蝕、氫致開裂(HIC)、硫化物應力腐蝕開裂(SSC)等形式。均勻腐蝕會使金屬材料的厚度逐漸減薄,降低其承載能力;點蝕則會在金屬表面形成小孔,成為腐蝕進一步發展的隱患;氫致開裂和硫化物應力腐蝕開裂更為危險,它們會在材料內部產生裂紋,最終導致管道破裂,引發泄漏事故,造成嚴重的環境污染和經濟損失。
抗硫化氫法蘭的工作原理 抗硫化氫法蘭通過特殊的設計和材料選擇來抵御硫化氫的侵蝕。在設計方面,它通常具有更合理的結構,以減少應力集中點,降低因應力導致的腐蝕風險。例如,帶頸對焊法蘭采用了特殊的喇叭形體結構,這種結構能使焊口離接合面有較大距離,避免接合面受到焊接溫度變形的影響,同時也有助于均勻分散管道內的壓力和應力。 從材料角度來看,抗硫化氫法蘭選用的鋼材經過精心篩選和處理。這些鋼材一般具有低硫、低磷含量,以減少雜質對材料耐腐蝕性的不利影響。同時,會添加一些合金元素,如鉻(Cr)、鎳(Ni)、鉬(Mo)等。鉻能在金屬表面形成一層致密的氧化膜,提高材料的抗氧化和抗腐蝕能力;鎳可以增強材料的強度和韌性,同時提高其在酸性環境中的耐腐蝕性;鉬則有助于提高材料的抗點蝕和縫隙腐蝕性能。通過這些合金元素的協同作用,使法蘭材料具備優異的抗硫化氫腐蝕性能。
抗硫化氫法蘭的應用領域 石油和天然氣開采 在石油和天然氣開采過程中,從井口到集輸管道,再到處理廠的各個環節,都面臨著硫化氫腐蝕的風險??沽蚧瘹浞ㄌm廣泛應用于這些管道系統中,確保油氣的安全輸送和處理。例如,在高含硫氣田的開采中,井口裝置的連接、集輸管道的連接等部位都必須使用抗硫化氫法蘭,以防止硫化氫對管道的腐蝕,保障生產的連續性和安全性。 化工行業 化工生產中,許多工藝過程會涉及到硫化氫或含硫化合物。如煉油廠的加氫裝置、硫磺回收裝置,以及一些以含硫原料進行生產的化工企業。在這些裝置的管道系統中,抗硫化氫法蘭用于連接管道、設備,防止硫化氫腐蝕導致的泄漏事故,保證化工生產的穩定運行。 海洋工程 海洋環境中不僅存在海水的腐蝕,一些海底油氣田還含有硫化氫等腐蝕性氣體。海上平臺的油氣輸送管道、海水處理系統等都需要使用抗硫化氫法蘭。這些法蘭要同時具備抗海水腐蝕和抗硫化氫腐蝕的性能,以適應惡劣的海洋環境。
抗硫化氫法蘭的性能測試 為了確??沽蚧瘹浞ㄌm在實際使用中能夠可靠地抵御硫化氫腐蝕,需要進行一系列嚴格的性能測試。 氫致開裂(HIC)測試 常用的測試標準有 NACE TM0284 - 2016、GB/T 8650 - 2015 等。測試時,從法蘭上切割出特定尺寸的試樣,將其置于含有 NaCl 和 CH?COOH 的酸化溶液(如 A 溶液)或合成海水溶液(如 B 溶液)中,在常溫常壓下暴露 96 小時。測試結束后,通過宏觀檢查和微觀分析來評估試樣表面和內部是否有裂紋形成,以此判斷法蘭材料對氫致開裂的敏感性。 硫化物應力腐蝕開裂(SSC)測試 依據 NACE TM0177 等標準進行。測試時,對試樣施加一定的應力,并將其置于含硫化氫的酸性溶液中,觀察在規定時間內試樣是否出現裂紋。該測試主要評估法蘭材料在硫化氫環境和應力共同作用下抵抗開裂的能力。
抗硫化氫法蘭的發展趨勢 隨著工業的不斷發展,對管道系統在含硫環境下的安全運行要求越來越高,抗硫化氫法蘭也在不斷發展創新。一方面,材料研發持續深入,新型高性能材料不斷涌現,如具有更優異耐腐蝕性和綜合性能的合金材料。通過優化合金成分和微觀結構,進一步提高法蘭的抗硫化氫腐蝕能力和使用壽命。另一方面,制造工藝不斷改進,采用先進的加工技術和質量控制手段,確保法蘭的制造精度和質量穩定性。例如,利用數字化制造技術實現精準加工,通過嚴格的質量管理體系保證每一個法蘭都符合高標準的性能要求。同時,隨著智能化技術的發展,未來抗硫化氫法蘭可能會集成一些智能監測功能,能夠實時監測其腐蝕狀態和工作性能,為管道系統的安全運行提供更可靠的保障。 抗硫化氫法蘭在工業管道系統中起著至關重要的作用,它是抵御硫化氫腐蝕的堅固防線。通過不斷優化材料選擇、改進設計和制造工藝、加強性能測試以及探索智能化發展,抗硫化氫法蘭將在未來的工業發展中持續為管道系統的安全穩定運行保駕護航。
鋼制管法蘭的標準
HG/T 20615-2009 是鋼制管法蘭(Class 系列)標準。該標準規定了鋼制管法蘭(Class 系列)的公稱尺寸、公稱壓力、材料、壓力 - 溫度額定值、法蘭類型和尺寸、密封面、公差及標記等內容,適用于公稱壓力 Class150(PN2.0)~Class2500(PN42.0)的鋼制管法蘭和法蘭蓋。具體內容如下:

· 公稱壓力和鋼管外徑:直徑在 DN15-DN600 時,公稱壓力設 Class150、Class300、Class600、Class900、Class1500、Class2500 六個等級;直徑在 DN650-DN1500 時,公稱壓力范圍定為 Class150、Class300、Class600、Class900 四個等級。標準中使用的鋼管外徑為 HG/T 20553 中所列的 1A 系列鋼管外徑尺寸,也是 ISO 4200 中第一系列。
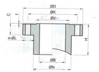
· 法蘭類型:包括帶頸平焊法蘭、帶頸對焊法蘭、整體法蘭、長高頸法蘭、承插焊法蘭、螺紋法蘭、對焊環松套法蘭、法蘭蓋、孔板法蘭以及夾套法蘭共計 10 種。
· 密封面型式:有凸臺面(RF)、榫HG/T 20615-2009 是鋼制管法蘭(Class 系列)標準。該標準規定了鋼制管法蘭(Class 系列)的公稱尺寸、公稱壓力、材料、壓力 - 溫度額定值、法蘭類型和尺寸、密封面、公差及標記等內容,適用于公稱壓力 Class150(PN2.0)~Class2500(PN42.0)的鋼制管法蘭和法蘭蓋。具體內容如下:
槽面(T/G)、環連接面(RJ)、凹凸面(M/FM)和全平面(FF)5 種。
· 連接尺寸:主要包括螺栓中心圓直徑、螺栓孔直徑、螺紋尺寸、螺栓個數、法蘭外徑等。
· 密封面尺寸:法蘭的密封面尺寸按 ASME B16.5 中 SI 制。法蘭密封面突臺高度取 2mm(<Class300)和 7mm(≥Class300)。
· 法蘭內徑:帶頸平焊法蘭的內徑是根據鋼管外徑并考慮 1% 左右的外徑偏差,加上適當的間隙而確定的,部分尺寸根據相關標準進行了調整。
頸部尺寸:相同規格的帶頸平焊法蘭、承插焊法蘭和螺紋法蘭的頸部尺寸完全一致,頸部可以是平行的直筒形或者頸部外側斜度不大于 7°。
A350LF2法蘭的熱處理工藝
A350LF2 是一種常用于低溫環境的鍛制碳素鋼,其熱處理工藝通常采用正火或正火加回火的方式,以獲得良好的綜合力學性能,滿足低溫工況下的使用要求。以下是具體的工藝介紹2:
· 正火處理:將法蘭加熱到能產生奧氏體組織的溫度,一般加熱溫度在 880 - 910℃左右,保溫足夠的時間,使法蘭整體達到均勻溫度。保溫時間根據法蘭的厚度等因素來確定,確保組織充分轉變。然后,將法蘭從加熱爐中取出,在靜止空氣中均勻冷卻,從而得到細化的珠光體和鐵素體組織,提高鋼材的強度和韌性。
· 正火 + 回火處理:在正火之后,需要進行回火處理。將法蘭重新加熱到 590℃以上,通常在 590 - 670℃這個溫度區間。同樣,保溫時間要根據壁厚來調整,但一般不低于 30 分鐘。對于壁厚超過 25 毫米的鍛件,保溫時間至少為(壁厚 ×30 分鐘 / 25 毫米)。保溫結束后,再次在靜止空氣中冷卻。回火的目的是消除正火過程中產生的內應力,進一步提高鋼材的韌性和塑性,同時保持一定的強度。
產品名稱 | 產品標準 | 產品規格 | ||||||||||
高徑、活套 | ANSI B16.5; B16.47 ;DIN API6A;JIS EN BS | 1/2"--60" | ||||||||||
材料標準 | 化學成分 | C% | Mn% | P% | S% | Si% | Ni% | Cr% | Cu% | Mo% | Nb% | V% |
≤0.30 | 0.60-1.35 | ≤0.035 | ≤0.040 | 0.15-0.30 | ≤0.40 | ≤0.30 | ≤0.40 | ≤0.12 | ≤0.02 | ≤0.08 | ||
| 尺寸規定 | Rm(Mpa) | ReH(Mpa) | A(%) | Z(%) | 沖擊試驗 | Akv(J) | HBW | ||||
485-655 | ≥250 | ≥22 | ≥30 | ≥20 | 150-197 | |||||||
熱 處 理 規 范 | ||||||||||||
熱處理方式 | 裝爐溫度 | 升溫速度 | 加熱溫度 | 保溫時間 | 冷卻介質 | 設備及測控、溫儀 | ||||||
淬火 | ≤900℃ | 隨爐 | 900±10℃ | 1.4min/mm | 水(≤30℃) | 熱處 | 臺車式電阻爐、井式爐 | |||||
回火 | ≤500℃ | 隨爐 | 600±10℃ | 1.5min/mm | 空冷 | 測控 | 熱電偶、數顯調節儀 | |||||

此外,A350LF2 法蘭也可能會根據具體的使用要求和客戶需求,采用淬火加回火的熱處理工藝,即調質處理,來獲得更高的強度和更好的綜合性能,但這種情況相對較少。在實際生產中,具體的熱處理工藝參數還需要根據法蘭的尺寸、形狀、生產批量以及相關的標準和技術要求等進行合理調整和確定。